Stół z basenem 900x600x850 mm h=400 KBT-161
Produkty wykonane są ze stali nierdzewnej chromowo-niklowej w gatunku 1.4301 (PN 0H18N9; AISI 304; DIN X5CrNi 18-10).Wyroby nasze są funkcjonalne, ergonomiczne i trwałe, a ich konstrukcja zapewnia łatwe utrzymanie czystości. Szczególny nacisk kładziemy na estetykę wykonania produktów, wszystkie spoiny są bardzo dokładnie obrobione, a krawędzie blach starannie ogratowane, co zapewnia ich wysoką jakość.
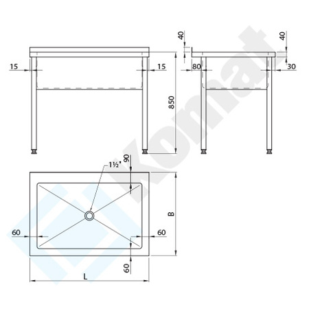
Blaty stołów z basenami wykonane są z blachy o grubości 1,5 mm. Komory basenów wykonane są z blachy o grubości 1,5 mm, wszystkie krawędzie wewnętrzne basenu są zaokrąglone promieniem R=20. Obrzeża blatów są o grubości 40 lub 50 mm z rantem przyściennym na wysokości 40 lub 50 mm.





